Cuota

Cuarto de baño prefabricado pod es una unidad completa que incluye todas las partes como el techo, pared, piso y artículos sanitarios. El techo, el suelo y las paredes están hechos de SMC(lameting molding compound). Es de alta resistencia y peso ligero, se ha llamado materiales aéreos, por lo general se utiliza en el equipaje de avión y armarios. El suelo es molde de un paso por la prensa con alta temperatura y presión. Es una pieza con un rendimiento estanal. Puede instalarse en 4 horas.

| BUL1014 | ||
| Nombre | Especificación | |
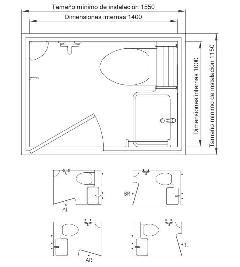
| Partes principales | Suelo de molde de SMC | 1000x1400mm |
| Paredes del molde de SMC | H=2000/2200mm | |
| Techo del molde de SMC | 1000x1400mm | |
| La puerta | 700x2000mm | |
| Desagüe de piso | ||
| Моечное | Cuenca del molde de SMC | L=1000mm |
| Bocana de lavabo | Manillar de un solo mango y un solo orificio | |
| Espejo | 500*700mm | |
| Soporte para toallas | L=400mm,ABS | |
| Rack de forma rectangular | ABS | |
| Área de baño | Bañera | Prensa de alta prensa |
| Soporte para papel de manteles | ABS | |
| Ducha | Riego de ducha | Agujeros dobles de un solo mango,incl. lluvia |
| Estante de jabón | ABS | |
| Soporte para toallas de ducha | L=400mm,ABS | |
| Cortina de ducha | L=1000mm | |
| Electrodomésticos | Luz LED | 4000k |
| Ventilador de ventilación | Cuenca del molde de SMC | |
| Toma de corriente | ||
| Accesorios de instalación | Juegos de marcos de fijación | |
| Tuberías de abastecimiento de agua | Longitud 150mm más alta que la pared del baño | |
| Tuberías de alcantarillado | ||
| Sellantes | ||