
MTU1219 | ||
Nombre | Especificación | |
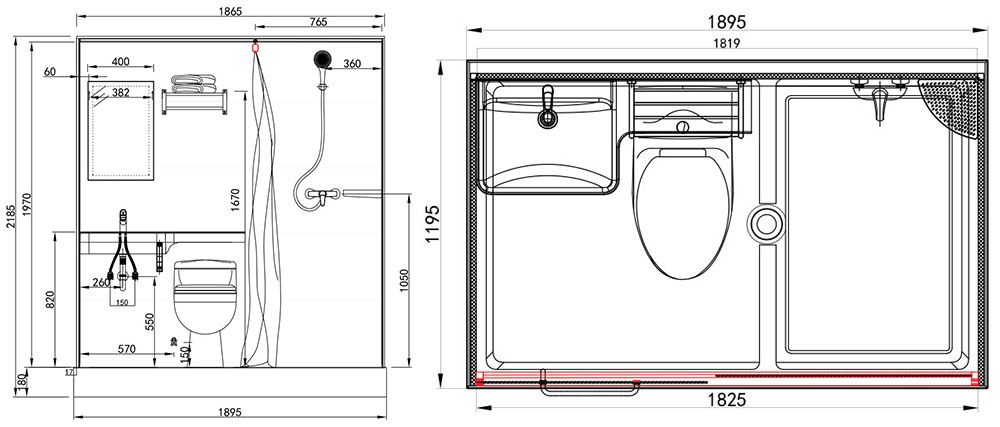
Partes principales | Suelo de molde de SMC | 1195x1895x180mm |
Panel compuesto de pared ABS | H=2200mm | |
Suelo de paneles en forma de panal | 1220x2600mm | |
Puerta corrediza de vidrio deslizante | 1825x2000mm | |
Lavado + Ducha | Espejo | 400x600mm |
Lavabo tipo P | L=1000mm | |
Grifo de lavabo | ||
Ducha de mano | ||
| Desagüe del lavabo | ||
| Estante triangular para baño | 210x210mm | |
| Cortina de baño | ||
Toallero | 400mm | |
El aseo | Toaleta | |
| Sellador antifungo | ||
| tubo corrugado | 400mm | |
Flande de drenaje | 75mm | |
Electrodomésticos | Luz LED | 4000k |
| Enchufe con caja protectora impermeable | ||
| Ventilador de ventilación | 300x300mm | |
Marco de conversión de ventilador | 300x300mm | |
Accesorios de instalación | Perfiles | |
| Tira de caucho | ||
| Tornillo de fijación de cobre | ||
| Tubería de agua potable | ||
| Tubo de drenaje de PVC | ||
| conexión de cañería en tres vías | ||
| pegamento para vidrio | ||
| Instalar los elementos de fijación (bolsas de tornillos) | ||